NEW

トゥルースタウン 101

6.6万円

管理 / 共益費 6,750円

福井県福井市若杉2丁目902

福井鉄道市内軌道線「商工会議所前」駅徒歩36分

福井鉄道市内軌道線「足羽山公園口」駅徒歩37分

福井鉄道福武線「赤十字前」駅徒歩37分

賃料
6.6万円
敷金(保証金)
3万円(-)
間取り
2LDK
向き
南東
所在地
福井県福井市若杉2丁目902
管理 / 共益費
6,750円
礼金
7万円
専有面積
58.07㎡
築年月
1999年12月(築26年)
交通

福井鉄道市内軌道線商工会議所前」駅 徒歩36分

福井鉄道市内軌道線足羽山公園口」駅 徒歩37分

福井鉄道福武線赤十字前」駅 徒歩37分

物件の特徴

  • バストイレ別

  • 室内洗濯機置場

  • TVモニタ付きインターホン

  • カウンターキッチン

  • ネット使用料無料

セールスポイント

TVインターホン付きのお部屋です!室内設備はエアコン・CATV・追い焚きなどが揃っているので、快適に過ごしやすいお部屋になります。

ポイント

基本情報

保証金
-
敷引 / 償却
- / -
敷金積み増し
-
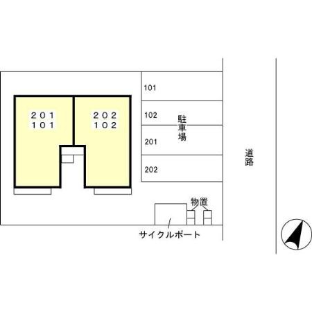
間取り / 詳細
2LDK
洋室 6.0帖/洋室 6.0帖/LDK 13.5帖
向き
南東
専有面積
58.07㎡
バルコニー
(テラス)面積
-
所在階 / 階建て
1階 / 2階建
建物構造
軽量鉄骨
築年月
1999年12月(築26年)
種別
アパート
保険会社 / 料金
有  / -
保証会社 / 料金
必加入 / その他
機関保証加入必須。初回保証料35000円、月額保証料賃料等総額の1%+800円/月(商品あり) LPガス料金はご契約前にLPガス事業者にご確認いただけます。 65歳以上の方の契約は定借契約(2年再契約型)機関保証の加入が必須。(初回保証料:月額賃料等合計額×100%,更新:2万円/1年)
駐車場 / 月額
空有 / 5,500円 (税込)
現況
空家
入居可能時期
即時
その他条件
室内清掃費用:7万1,500円

設備条件

設備条件
  • 室内洗濯機置場 / バルコニー / プロパンガス / 公営水道 / 公共下水 / 電気有 / 照明器具付き / カウンターキッチン / バス・トイレ別 / 追焚機能浴室 / 温水洗浄便座 / 洗髪洗面化粧台 / シャワー / ユニットバス / エアコン / 床下収納 / トランクルーム / シューズボックス / CATV / インターネット対応 / ネット使用料無料 / TVモニタ付インターホン / 角部屋 / 家賃+初期費用カード決済可

その他

契約期間
2年
賃貸区分
一般
更新料
1ヶ月(新賃料)
更新事務手数料
-
総戸数
-
特優賃
-
取引態様
仲介
物件番号
100892621
管理コード
-
情報更新日
2026年03月09日
次回更新予定日
2026年03月23日
取扱会社
  • いい部屋ネット 福井二の宮店
  • 福井県福井市経田1丁目207 
  • TEL:0776-89-1077
  • 福井県知事 (1) 第1750号
  • (公社)福井県宅地建物取引業協会
    (公社)全国宅地建物取引業保証協会
    北陸不動産公正取引協議会
備考
こだわりで選びたい方におすすめ。福井市エリアで住まいをお探しなら「トゥルースタウン」。近くにはファミリーマート 福井若杉店(徒歩5分)がありちょっとした買い物に便利です。今や必需品ともなったネット。こちらはインターネット有り物件です。福井市エリアや福井鉄道福武線商工会議所前付近での新生活をお考えなら、お部屋探しは当社にお任せ下さい。当社でなら素敵なお部屋がきっと見つかります。

近隣の物件

  1. プレジール大宮

    福井市大宮3丁目

    3LDK (75.00㎡)

    6.5万円

  2. Glory Days大宮(グローリィデイズオオミヤ)

    福井市大宮1丁目

    1LDK (42.79㎡)

    7.4万円

  3. フランセス高柳 Ⅰ

    福井市高柳2丁目

    1LDK (48.28㎡)

    6万円

  4. リリアーナ

    福井市新田塚町

    1LDK (42.37㎡)

    5.9万円

よく見られている物件

  1. コーポK

    福井市二の宮5丁目

    1R (17.00㎡)

    3.5万円

  2. Rutile高木

    福井市高木町

    1LDK (39.95㎡)

    6.1万円

  3. コーポあおき1

    越前市国高1丁目

    1DK (27.20㎡)

    3.3万円

  4. Greenville

    福井市大宮3丁目

    1K (31.57㎡)

    5.6万円

トゥルースタウン

トゥルースタウン

6.6万円

6,750円

2LDK(58.07㎡)

お気軽にお問い合わせください

LINEからお問い合わせ 無料お問い合わせ

いい部屋ネット 福井二の宮店

0776-89-1077

9:00~18:00

(休:なし)